| Objekte
|
obj |
Klosterkirche |
| OBJ-Dok-Nr. |
5000:Text |
09105341 |
| Kreis |
5098:Text |
Teltow-Fläming |
| Gemeinde |
5100:Text |
Jüterbog |
| Ort |
5108:Text |
Jüterbog |
| Straße |
5116:Text |
Mönchenstraße |
| Bauw-Name |
5202:Text |
Franziskanerkirche / Mönchenkirche |
| Sachbegriff |
5230:Text |
Klosterkirche |
| Akt. Nutz. |
5231:Text |
Bibliotheksgebäude |
Dat-Art
|
5060:Text |
Datierung, nach 1480 |
| num. Dat. |
5064:Text |
nach 1480 |
Dat-Art
|
5060:Text |
Umbau, 1510 & 1739 & 1820 |
| num. Dat. |
5064:Text |
1510 & 1739 & 1820 |
Dat-Art
|
5060:Text |
Restaurierung, 1925-1927 |
| num. Dat. |
5064:Text |
1925-1927 |
| Formtyp |
5240:Text |
Hallenkirche |
| Grundriß |
5244:Text |
dreischiffig |
| (Bau-)Mater. |
5280:Text |
Backstein |
| Konst/Techn. |
5300:Text |
massiv |
Detail-Sachbegr.
|
5930:Text |
Gewölbe, Kreuzrippengewölbe, 1510, Chor |
| Det-Form |
5932:Text |
Kreuzrippengewölbe |
| Det-Dat. |
5938:Text |
1510 |
| Det-Lokal. |
5940:Text |
Chor |
Bez-Soziet.
|
ob45:Text |
Bauherr, geistlicher Orden, Franziskaner |
| Enti-Art |
4560:Text |
geistlicher Orden |
| Name |
4600:Text |
Franziskaner |
| Ausw-Art |
9456:Text |
ED |
| Bezeichnung |
9990:Text |
Franziskanerkirche (Mönchenkirche) |
Lit-Kurzt.
|
8330:Text |
Denkmaltopographie Teltow-Fläming, Bd. 17.1, 2000, S. 88 ff. |
| Stelle |
8334:Text |
S. 88 ff. |
Lit-Kurzt.
|
8330:Text |
Dehio Brandenburg, 2012, S. 512, 09105341 |
| Stelle |
8334:Text |
S. 512 |
| Beschreibung |
8336:docPage |
09105341.pdf |
WEB-Bilder
|
99PD:ImageRef |
TF-JueterbgMoenchenkirche.jpg, Drachenberg, Thomas, 2004 |
| Fotograf |
8490:Text |
Drachenberg, Thomas |
| AufnDat |
99AD:Text |
2004 |
| WEB-Bilder |
99PD:ImageRef |
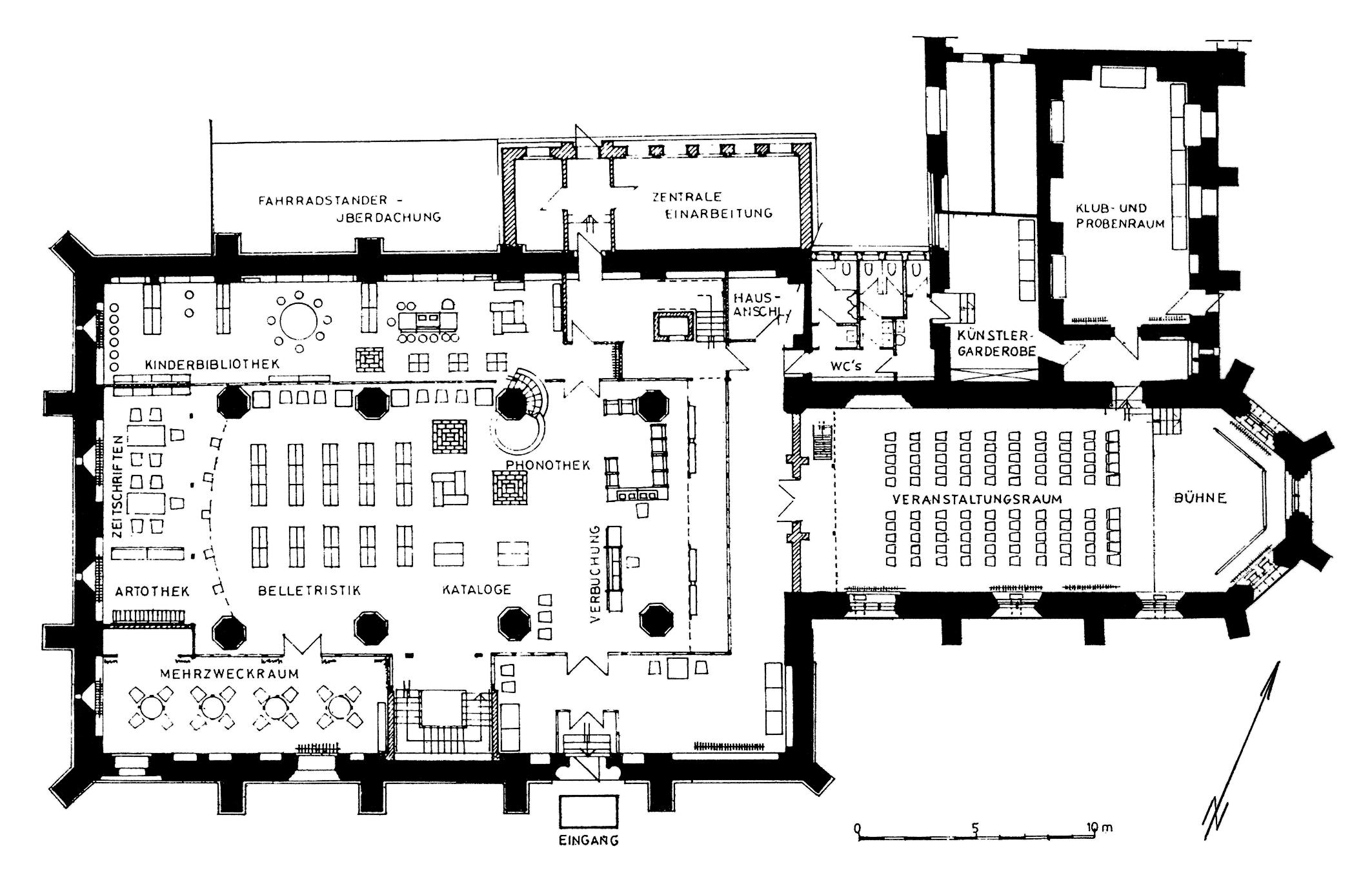
TF-Jüt-FranzKlo-MönKi-Grundriss_1999.jpg |
WEB-Bilder
|
99PD:ImageRef |
TF-Jüt-FranzKlo-MönKi-1_1999.jpg, Möller, Dieter, 1999 |
| Fotograf |
8490:Text |
Möller, Dieter |
| AufnDat |
99AD:Text |
1999 |
WEB-Bilder
|
99PD:ImageRef |
TF-Jüt-FranzKlo-MönKi-2_1999.jpg, Möller, Dieter, 1999 |
| Fotograf |
8490:Text |
Möller, Dieter |
| AufnDat |
99AD:Text |
1999 |
| Urh-Instit. |
9902:Text |
BLDAM |