| Objekte
|
obj |
Dorfkirche |
| OBJ-Dok-Nr. |
5000:Text |
09105726 |
| Kreis |
5098:Text |
Teltow-Fläming |
| Gemeinde |
5100:Text |
Niedergörsdorf |
| Ort |
5108:Text |
Wölmsdorf |
| Lage |
5125:Text |
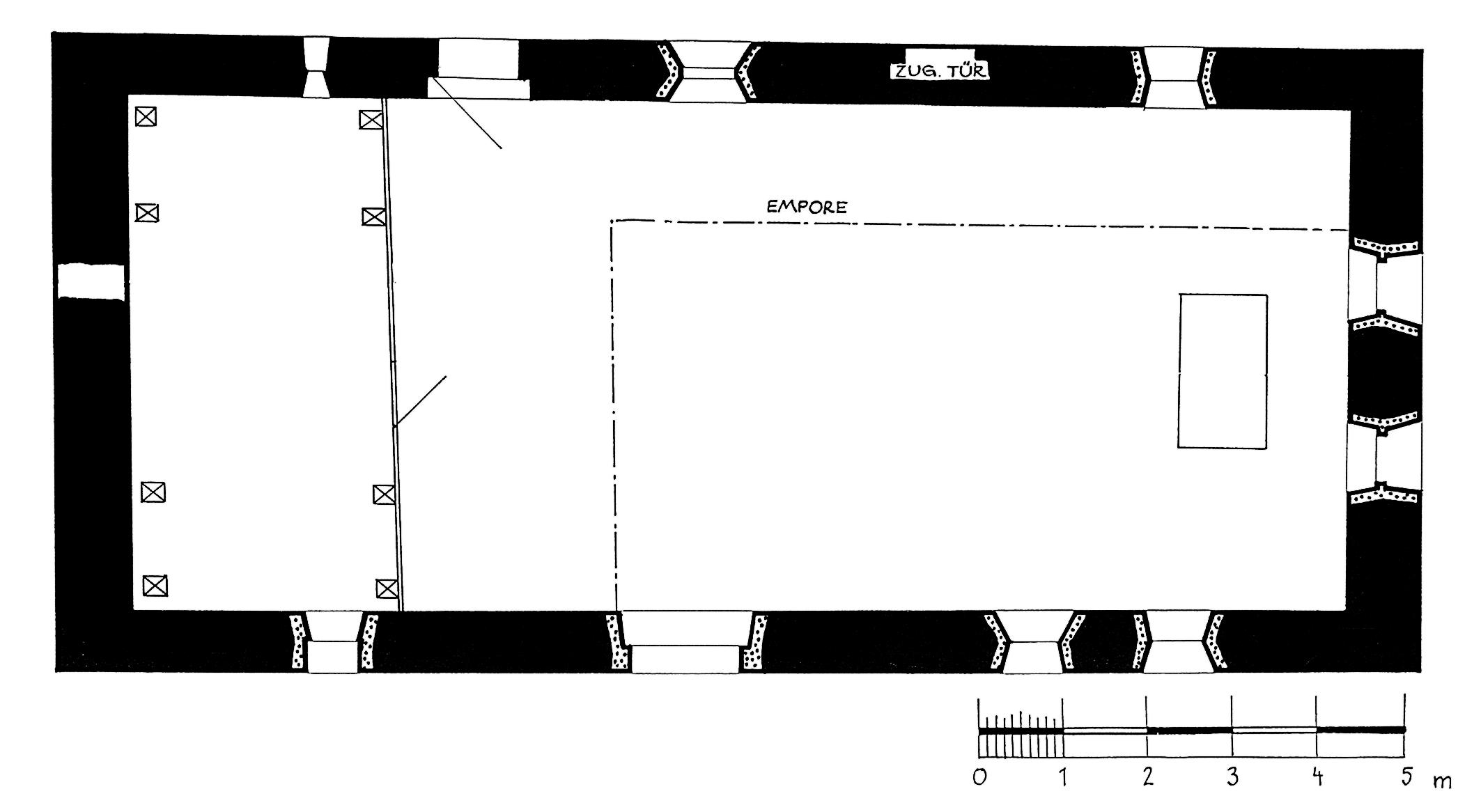
Der Feldsteinbau steht im Zentrum des Dorfes auf dem Kirchhof. |
| Sachbegriff |
5230:Text |
Dorfkirche |
Dat-Art
|
5060:Text |
Datierung, um 1300 |
| num. Dat. |
5064:Text |
um 1300 |
Dat-Art
|
5060:Text |
Umbau, 1774 |
| num. Dat. |
5064:Text |
1774 |
Dat-Art
|
5060:Text |
Restaurierung, 1998 |
| num. Dat. |
5064:Text |
1998 |
| Formtyp |
5240:Text |
Saalkirche |
| (Bau-)Mater. |
5280:Text |
Feldstein |
| Dachform |
5910:Text |
Satteldach |
Detail-Sachbegr.
|
5930:Text |
Dachwerk, doppelt stehender Dachstuhl, 1526, Dendrochronologie |
| Det-Techn. |
5936:Text |
doppelt stehender Dachstuhl |
| Det-Dat. |
5938:Text |
1526 |
| Det-Besch. |
5944:Text |
Dendrochronologie |
| Stil |
5084:Text |
Gotik |
| Ausw-Art |
9456:Text |
ED |
| Bezeichnung |
9990:Text |
Dorfkirche und Denkmal für die im Ersten Weltkrieg gefallenen Soldaten, am Kirchhof |
Lit-Kurzt.
|
8330:Text |
Denkmaltopographie Teltow-Fläming, Bd. 17.1, 2000, S. 390 f., 09105726 |
| Stelle |
8334:Text |
S. 390 f. |
| Beschreibung |
8336:docPage |
09105726.pdf |
WEB-Bilder
|
99PD:ImageRef |
TF-Wölmsdf-DorfKi-1_1999.jpg, Rüdenburg, Uwe, 1999 |
| Fotograf |
8490:Text |
Rüdenburg, Uwe |
| AufnDat |
99AD:Text |
1999 |
WEB-Bilder
|
99PD:ImageRef |
TF-Wölmsdf-DorfKi-2_1999.jpg, Rüdenburg, Uwe, 1999 |
| Fotograf |
8490:Text |
Rüdenburg, Uwe |
| AufnDat |
99AD:Text |
1999 |
WEB-Bilder
|
99PD:ImageRef |
TF-Wölmsdf-DorfKi-3_1999.jpg, Rüdenburg, Uwe, 1999 |
| Fotograf |
8490:Text |
Rüdenburg, Uwe |
| AufnDat |
99AD:Text |
1999 |
| WEB-Bilder |
99PD:ImageRef |
TF-Wölmsdf-DorfKi-Grundriss_1999.jpg |
| Urh-Instit. |
9902:Text |
BLDAM |